Our Vision

The Prophet ﷺ said:
"When a man passes away, his good deeds will also come to an end except for three: Sadaqah Jariyah, a knowledge which is beneficial or a virtuous descendant who prays for him."

 
 

One such form of Sadaqah Jariyah is contributing to the establishment of a Masjid. To this end, the Wendywood Muslim Jamaat Trust (WMJT) was formed in 2014 and its constitution formally adopted. The WMJT is registered as a Public Benefit Organization (PBO # 930047033). Through the Grace of Allah Subhanahu Wa Ta'ala, the objective of WMJT is to establish a place for Allah's ﷻ worship and remembrance and a centre for Islamic learning. It is also envisaged that the centre promotes the ethos of community development and service to humanity.

The proposed facility is ideally located to serve the needs of Muslims living and working in Wendywood, Gallo Manor, Morningside Manor and Woodmead Suburbs of Sandton, Johannesburg. 

Alhamdulillah, the Muslim community in our area is growing with our database showing that there are in excess of 200 Muslim families in these areas. Easy access to transport infrastructure, the Sandton CBD, surrounding office parks and other rapidly developing commercial areas has made our area an attractive residential mode for Muslim families.

 

phase 01
acquiring & rezoning
selected properties


WMJT currently owns two properties that are fully paid for. 93 Bowling Avenue was acquired for R1,7 million and 95 Bowling Avenue was acquired for R2,3 million. Both properties have successfully been rezoned and promulgated by the City of Johannesburg to an “Educational and place of public worship” Consolidation of the 2 properties has been completed.

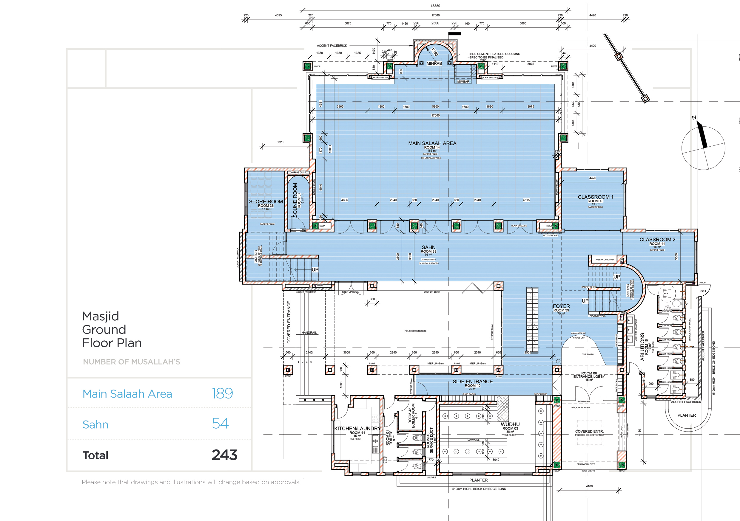
Five daily salaah (including Friday Jumuah) are being performed since Ramadan 2012. Madrassa classes are also offered catering for Grades R to 12. All operational costs are covered by the community.

phase 02
embarking on the
Masjid construction


With the re-zoning and consolidation of the existing properties complete, we are embarking on phase 2 of the project which involves the construction of a Masjid.

The site development plans and building plans have been submitted to the council and have been approved and the building contractor appointed.

Alhumdulillah, construction of the Masjid has commenced in Q4 2024.  

 
 
 
 
 

PROPOSED MaSJID SITE   

93 & 95 Bowling Ave
 
Community-Map.jpg
 

 
 

 
 

The Prophet ﷺ said:
"That person who builds a Masjid for Allah ﷻ , Allah ﷻ will build for him a house in Jannah.

We appeal to the Muslim community to make dua
for the successful completion of the
Wendywood Masjid & Madrassa
project & to financially assist in this regard.

 
Donate
gold.png